Bestektekening nodig
Bij veel bouwprojecten is het belangrijk om goede bestektekeningen te laten maken. Zeker bij grote projecten is het must. Een bestektekening is een technisch ontwerp en vormt namelijk samen met een bestekhet contract tussen de opdrachtgever en de aannemer. Vanuit het programma van eisen wordt een gebouwontwerp gemaakt. Meestal wordt gestart met een Voorlopig Ontwerp en later een Definitief Ontwerp. Dit gaat van grof naar fijn. Nadat de definitieve geometrie in het Definitief Ontwerp is vastgelegd, worden de exacte gebouwprestaties vastgelegd in de bestektekeningen.
De aannemers is verplicht de werkzaamheden uit te voeren, zoals op de bestektekeningen staat getekend en omschreven. Om discussie achteraf te voorkomen is het van groot belang dat alles goed is uitgedacht en dat open eindjes en grijze gebieden niet meer in het ontwerp voorkomen. Naast de tekeningen wordt een bouwkundig bestek gemaakt. Vanuit het bouwkundig bestek wordt naar de tekeningenlijst van de tekeningen verwezen. Dit houdt in dat de tekeningen een belangrijk deel uitmaken van het contract tussen de opdrachtgever en opdrachtnemer van het gebouw.
Een bestektekening van Blauwdruk is duidelijk, overzichtelijk en technisch goed onderlegd. De tekening vormt de basis voor een goed gebouw.
Wat we tekenen
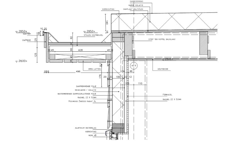
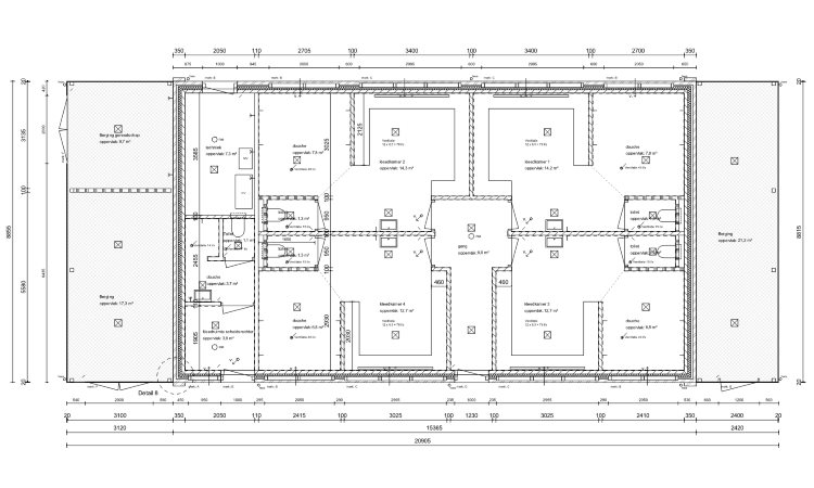
Op een bestektekening zijn meer technische gegevens uitgewerkt dan op een Definitief Ontwerp tekening. Een bestektekening dient tevens als tekening voor het aanvragen van een omgevingsvergunning. De tekening bevat plattegronden, gevels en doorsneden schaal 1:100 of 1:50. Daarnaast worden van alle beeldbepalende- en technisch uitdagende knooppunten van een gebouw details schaal 1:5 gemaakt. Ook staat een situatietekening schaal 1:500 op de tekeningen.
Kenmerkend aan bestektekeningen is dat zoveel mogelijk belangrijk prestaties van het gebouw worden genoemd. Het is namelijk van belang dat de aannemer conform de gewenste gebouwprestaties bouwt. Denk hierbij aan:
- Energieprestatie
- Isolatiewaarde van het glas
- Mate van afschot op daken
- Ventilatiecapaci per ruimte
- Toe te passen houtsoorten
- Merk en type binnendeuren
- Vloerafwerking per ruimte
Welke Bestektekening nodig
Blauwdruk bouw heeft veel ervaring met het uitwerken van bestektekeningen. De tekeningen worden gemaakt voor nieuwbouw, renovatie, groot onderhoud en uitbreiding. Dit doen we voor woningbouw en utiliteitsbouw. In tegenstelling tot veel andere bedrijven verzorgen wij naast de tekeningen ook de berekeningen die bij het bestek horen. Denk aan:
Nadat de bestektekening gemaakt zijn, kunnen de tekeningen nog verder worden uitgewerkt tot werktekeningen (uitvoeringsgereed ontwerp). Deze tekeningen bevatten een grootst mogelijk detailniveau waarbij plattegronden, gevels en doorsneden schaal 1:50 of 1:20 worden uitgewerkt. Blauwdruk begeleidt projecten vanaf ideevorming tot en met de bouw, maar werkt ook bestektekeningen uit zonder bij andere fases in een project betrokken te zijn.

