Waarom omgevingsvergunning
Voor het bouwen of verbouwen van een gebouw moet in veel gevallen een omgevingsvergunning worden aangevraagd. Met een omgevingsvergunning krijgt de opdrachtgever van de gemeente toestemming om bijvoorbeeld te bouwen, te slopen, te verbouwen of te renoveren. Bij het indienen van de aanvraag dienen een aantal zaken te worden uitgewerkt, zoals:
- Ontwerp, fotorapportage en situatie
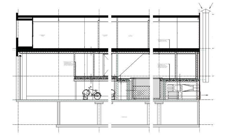
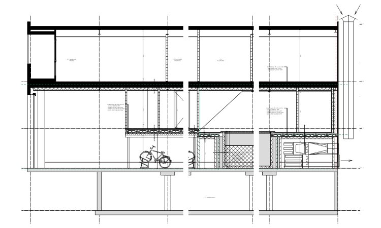
- Plattegronden, aanzichten en doorsneden
- Principe details
- Constructieve berekeningen
Blauwdruk bouw werkt alle benodigdheden voor de aanvraag van de omgevingsvergunning uit. De gemeente toetst na het aanvragen van de omgevingsvergunning of de stukken compleet zijn, of ze voldoen aan de eisen uit het bouwbesluit, voldoen aan de normen voor brandveiligheid, aan het bestemmingsplan en aan esthetische voorwaarden.
Het gaat om het ontwerp, de bouwtekeningen en de constructieve berekeningen. Ook dienen we de aanvraag voor de omgevingsvergunning voor de opdrachtgever in.
Bouwaanvraag nu omgevingsvergunning
Vroeger heette dit nog geen omgevingsvergunning, maar een bouwvergunning (of bij slopen sloopvergunning). De overheid heeft het aanvragen van een bouwvergunning en andere vergunningen makkelijker gemaakt door de omgevingsvergunning te introduceren. Een omgevingsvergunning wordt digitaal, op internet, aangevraagd. Daarmee is het niet meer nodig dit op papier te doen.
Om een omgevingsvergunning aan te vragen, moeten projectinhoudelijke vragen worden beantwoord. Naast het uitwerken van benodigdheden voor het aanvragen van een omgevingsvergunning vraagt Blauwdruk bouw de vergunningen met de opdrachtgever aan. Zo weet de opdrachtgever zeker dat alle projectinhoudelijke vragen juist worden beantwoord en dat de vergunning wordt verleend.
Vergunningsvrij bouwen
Een aantal bouwwerken zijn vergunningsvrij. Het gaat meestal om kleine, minder opvallende bouwwerken als dakkapellen of bergingen. Dit betekent dat deze bouwwerken zonder verlening van een omgevingsvergunning mogen worden gebouwd. Het is belangrijk zeker te weten dat een bouwwerk vergunningsvrij mag worden gebouwd. Blauwdruk bouw kan hier advies over geven. Vergunningsvrij bouwen houdt niet in dat er geen wet- en regelgeving van toepassing is. Het bouwwerk moet nog steeds onder andere volgens de eisen uit het Bouwbesluit en bestemmingsplan te worden gebouwd. De gemeente toetst regelmatig of dit gebeurt. Wanneer een bouwwerk vergunningsvrij is, is het toch vaak verstandig tekeningen en constructieberekeningen te laten maken. Hiermee wordt de veiligheid en de kwaliteit gewaarborgd. Ook weet de opdrachtgever wat de aannemer bouwt en wat er is afgesproken.
Afwijken van het bestemmingsplan
De aanvraag voor een omgevingsvergunning wordt getoetst aan een bestemmingsplan. Een bestemmingsplan geeft de bestemming van een gebied in een woonplaats aan. Het gaat daarbij niet alleen om de functie van een kavel (wonen, werken, onderwijs, agrarisch gebied), maar ook om de maximale bouwhoogte (nokhoogte en goothoogte). Het bestemmingsplan bestaat uit een plankaart en een onderbouwing.
Het kan zijn dat bouw- verbouw of aanbouw plannen in strijd met het bestemmingsplan zijn. In dat geval dient er een bijzondere aanvraag voor een omgevingsvergunning te worden ingediend. Het gaat om een afwijking op het bestemmingsplan. Daarmee wordt goedkeuring gevraagd om iets te bouwen, wat eigenlijk niet is toegestaan. Blauwdruk bouw onderzoekt of een bouwplan binnen het bestemmingsplan wordt toegelaten. Indien dit niet zo is, ondersteunt Blauwdruk bij het aanvragen van een omgevingsvergunning voor de activiteit afwijken van het bestemmingsplan.





