Melding brandveilig gebruik kamerverhuur
Bij kamerverhuur van studentenkamers is een melding brandveilig gebruik verplicht. Dit is een gebruiksmelding die online via het Omgevingsloket wordt gedaan. Het Bouwbesluit noemt de kamerverhuur ‘kamergewijze verhuur’ wanneer in een niet-gemeenschappelijk deel van een woonfunctie zich vijf of meer wooneenheden bevinden. Bij de melding brandveilig gebruik voor kamergewijze verhuur beoordeelt de gemeente of de situatie (brand)veilig is. Een belangrijk uitgangspunt is dat bij brand sprake moet zijn van tijdige alarmering van de bewoners. Een melding moet minimaal vier weken voor de verhuur van de studentenkamers bij de gemeente worden gedaan.
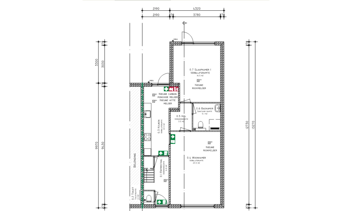
Het belangrijkste onderdeel van de melding is een plattegrondtekening met veiligheidsvoorzieningen. Blauwdruk begeleidt een aanvraag melding brandveilig gebruik en maakt de tekeningen die nodig zijn voor de melding.
Bij kamerverhuur is een melding brandveilig gebruik voor kamergewijze verhuur in veel gevallen verplicht. Blauwdruk helpt met het opstellen van de geschikte tekeningen en het doen van de melding bij de gemeente.
Wat is bij kamerverhuur verplicht?
Verhuurders zijn verplicht om studentenkamers veilig te verhuren. Er moeten altijd voldoende veiligheidsvoorzieningen zijn als rookmelders, blusdekens en brandblussers. Een melding brandveilig gebruik is bij vijf of meer kamers/huishoudens verplicht. Echter kan een melding of vergunningsaanvraag ook verplicht zijn bij vier of minder kamers. Dit is het geval wanneer:
- In het bestemmingsplan minder kamers toegestaan zijn.
- De gemeente aanvullende eisen stelt voor kamerverhuur..
De grens is op vijf kamers gelegd vanwege een TNO onderzoek uit 2003. Uit dit onderzoek bleek dat bij 5 of meer huishoudens de kans groter wordt dat bewoners elkaar niet meer waarschuwen in geval van brand. Het is raadzaam om bij de verhuur van studentenkamers altijd bouwkundige plattegronden met brandveiligheidsvoorzieningen uit te laten werken.
Wat staat er op een tekening melding brandveilig gebruik?
Een tekening voor de melding van brandveilig gebruik bij kamerverhuur moet aan een aantal voorwaarden voldoen. Het gaat om de volgende punten:
- Een plattegrond schaal 1:100 per bouwlaag
- Een situatietekening schaal 1:500 of 1:1000 met noordpijl
- Schaalaanduiding
- Vluchtroute
- Hoogte van de vloer boven peil
- Vloeroppervlakte
- Gebruiksbestemming / aanduiding functies van de ruimten
- Locatie blusmiddelen (zoals brandslanghaspels en draagbare blustoestellen)
- Locaties rookmelders
- Locatie EHBO koffers en blusdekens
- Vluchtrouteaanduiding
- Brand-of rookwerende scheidingsconstructies
- Draairichting van deuren en/of openingsbreedte van deuren/li>
- Zelfsluitende deuren in een brand- of rookwerende scheidingsconstructie
- Hang- en sluitwerk van deuren (zoals panieksluiting, draaiknopcilinder en dergelijke)
De tekeningen worden op schaal uitgewerkt. Daarbij hanteren we alle standaard afspraken voor tekeningen zoals arcering. Belangrijk is dat op de plattegronden goed de benodigde (geschakelde) rookmelders getekend zijn, de vluchtwegaanduiding staat aangegeven en staat aangegeven waar de (brand) veiligheidsvoorzieningen aanwezig zijn.
Werkwijze tekening kamergewijze verhuur
We ontvangen bij voorkeur archieftekeningen van het pand waar de tekeningen voor de kamerverhuur voor gemaakt moeten worden. In de meeste gevallen maakt Blauwdruk een afspraak om de situatie ter plaatse na te meten en de aanwezige brandveiligheidsvoorzieningen na te lopen. Mochten er geen archieftekeningen zijn, wordt het pand volledig ingemeten. Na het bezoek aan het pand worden de benodigde tekeningen uitgewerkt. Na enkele dagen worden de tekeningen ter goedkeuring opgestuurd en wordt de melding brandveilig gebruik voor kamergewijze verhuur gestart.




