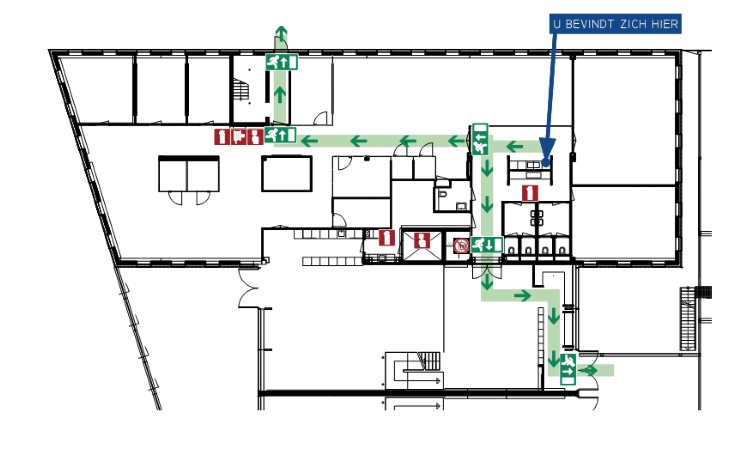
Wat is een vluchtwegplattegrond
Een vluchtwegplattegrond is een schematische tekening van de plattegrond van een gebouw. De plattegrond geeft aan welke vluchtroutes genomen kunnen worden tijdens een noodsituatie. Bijvoorbeeld bij brand of rookontwikkeling. Belangrijk is dat iedereen de plattegronden moet kunnen begrijpen. Een standaard bouwtekening voldoet dus niet.
De vluchtwegplattegronden moeten verplicht in een gebouw worden aangebracht als er in het gebouw een ontruimingsplan aanwezig is. In het Bouwbesluit is vastgesteld dat een ontruimingsplan verplicht is als er in het gebouw een brandmeldinstallatie is toegepast.
Een vluchtwegplattegrond moet voldoen aan verschillende eisen die zijn vastgelegd in twee normen (de NEN 1414 en NEN-EN-ISO 7010). In deze normen staan allerlei eisen waaraan de vluchtwegplattegronden moeten voldoen. Zo is bijvoorbeeld vastgesteld welk formaat en welke kleur vluchtwegplattegrond moet hebben, welke termen benoemd moeten zijn en waar de plattegronden opgehangen moeten zijn. Het ontwerp van een vluchtwegplattegrond is echter vrijgesteld en kan worden aangepast aan de gewenste huisstijl.
Op de vluchtwegplattegronden worden vluchtroutes van gebouwen afgebeeld. De tekeningen worden getekend volgens de NEN 1414 en NEN-EN-ISO 7010.
Aanpak
Blauwdruk bouw geeft altijd eerst advies over de noodzaak van een vluchtwegplattegrond. Als een vluchtwegplattegrond nodig is, wordt een afspraak gemaakt om het gebouw op te nemen. Daarbij worden alle zaken, die van belang zijn voor een vluchtwegplattegrond, snel digitaal met een inspectie app geregistreerd. In het geval van nieuwbouw worden de technische tekeningen (bouwtekeningen) gebruikt.
Nadat de benodigde opzet bekend is, wordt een plan voor de vluchtwegplattegronden bedacht en eventueel voorgelegd aan de brandweer. Daarna worden de vluchtwegplattegronden secuur uitgewerkt. De plattegronden worden digitaal aangeleverd. Eventueel hangt Blauwdruk de tekeningen in het gebouw, op de daardoor bestemde locaties. De vluchtwegplattegronden zijn volledig, kloppen met de werkelijkheid en voldoen aan de norm. Blauwdruk garandeert dan ook dat de vluchtwegplattegronden niet door instanties worden afgewezen.
Ervaring
Blauwdruk bouw heeft deze vluchtwegplattegronden voor meerdere opdrachtgevers gemaakt. Het gaat om:
- Opvangcentra
- Kinderdagverblijven
- Gemeenten
- Scholen
- Hotels
Doordat wij werken met slimme, gestandaardiseerde templates, kunnen wij de vluchtwegplattegronden snel tegen zeer aantrekkelijke kosten vervaardigen. Als er geen of nauwelijks goede bouwkundige tekeningen (archieftekeningen) aanwezig zijn, wordt de bestaande situatie volledig ingemeten. Ook garanderen we dat de tekeningen voor 100% voldoen aan de geldende normen.
Blauwdruk adviseert of een vluchtwegplattegrond nodig is. Dit kan voor zowel nieuwbouw als voor bestaande gebouwen waarvan de plattegrond is veranderd en niet meer overeenkomt met de eerder gemaakte vluchtwegplattegrond.

